Sánchez Terio ARQUITECTOS

 

 

< volver

 

 

 

 

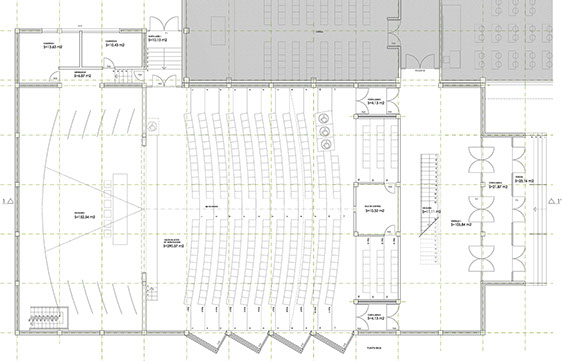
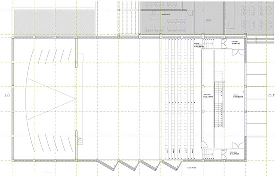
Auditorio San Antonio de Padua
Proyecto:
Privado Situación: CR N- 630, Parcela 498, Santa Fe, 10001,Cáceres
Este proyecto partía de la pretensión de realizar un auditorio, que sirviera tanto para salón de actos del colegio donde celebrar graduaciones, aperturas de curso, actuaciones musicales o teatrales de uso interno, como para auditorio o teatro de uso externo por organizaciones públicas o privadas, que pudieran desarrollar usos diversos, desde congresos a conciertos musicales. Se partía de un presupuesto muy ajustado y de unas necesidades acústicas elevadas, que dieran buena respuesta a todas las actividades mencionadas. El diseño interior estaba condicionado por estas premisas, añadiendo que al ser sus usuarios principales los estudiantes del colegio, es decir niños, tanto el mobiliario como las zonas bajas de las paredes debían ser especialmente resistentes al uso y al roce. El resultado final es un auditorio polifuncional, de apariencia noble a la par que moderna, con unos valores acústicos muy ajustados y unos materiales muy resistentes entre los que se encontraban el granito, algunas especies de maderas especialmente tratadas y el acero.