Sánchez Terio ARQUITECTOS

 

 

< volver

 

 

 

 

Vivero de Empresas de Arroyo de la Luz
Promotor:
Excmo. Ayuntamiento Arroyo de la Luz Situación: C/ Carretera, Arroyo de la Luz (Cáceres)
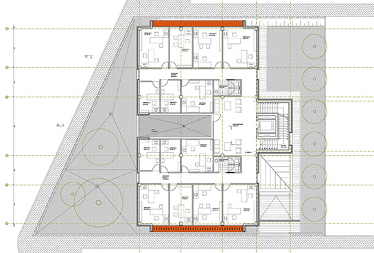
Este proyecto se ubicó en una zona de expansión, destinada a uso residencial y dotacional, que no se hallaba apenas desarrollada. El objetivo de la actuación era facilitar instalaciones y asesoramiento a jóvenes emprendedores que estuvieran dispuestos a activar el sector empresarial con sus propias iniciativas y de paso contribuyeran a paliar el paro existente. Para ello el edificio se desarrolló en dos plantas sobre la rasante de la calle. En planta baja se hallaban las zonas comunes del edificio, como son aulas de formación, salas de reuniones, etc. Además se reservó un espacio destinado a porche al aire libre que podría cerrarse el día de mañana en función de las necesidades para generar un salón de actos dónde impartir cursos o charlas con mayor capacidad que las aulas interiores. En planta primera, en la que se encuentran todos los despachos, se generó un patio de luces a modo de hienda en el volumen, que aseguraba la iluminación y ventilación. Este volumen principal se encuentra recubierto con una fachada ventilada a base de chapa de acero, que nos aporta reminiscencias industriales de la zona cercana y dota al edificio de iridiscentes destellos al reflejar la luz en el río Pontones que se halla en las inmediaciones. Se consiguió que todos los despachos y dependencias comunes fueran accesibles a personas con movilidad reducida, para lo que tuvo especial relevancia el núcleo de comunicación vertical del edificio. Este se proyectó a modo de torre adosada al volumen principal, con una piel distinta que destacaba su función. En cubierta se proyectó un espacio de porche y de esparcimiento al aire libre, desde el que se podía disfrutar de unas inmejorables vistas de la localidad y el río cercano.