Sánchez Terio ARQUITECTOS

 

 

< volver

 

 

 

 

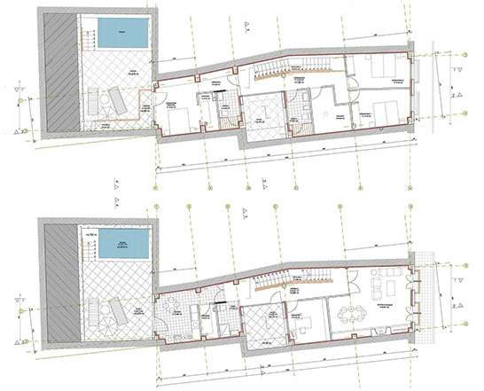
Vivienda R
Promotor:
Cliente Privado Situación: C/ Llanada, 32, Alcántara (Cáceres)
Este proyecto de vivienda y local entre medianeras se desarrolla dentro del casco histórico protegido del municipio de Alcántara, junto a la muralla medieval perimetral. El edificio cuenta con tres plantas de altura como se observa en la fachada principal, ocupando un local la planta baja. Sin embargo, en el fondo del solar la topografía existente es muy abrupta, resultando un desnivel superior a los 8 m. Este hecho dota de complejidad y riqueza al proyecto, ya que obliga a la vivienda a escalonarse para ajustarse a los diferentes niveles que surgen. De esta manera se adapta el primer nivel de la vivienda al nivel del patio posterior, surgiendo otro patio al fondo de la parcela a una cota superior y comunicado mediante una pasarela con el segundo nivel de la vivienda. En cuanto a su apariencia externa se consigue un rico juego de volúmenes con cierta diversidad formal respecto al entorno inmediato, empleando para ello los materiales característicos del lugar y continuando las líneas marcadas por los edificios colindantes. Sin embargo, debido a la rígida normativa patrimonial que le afectaba, el edificio mantuvo el orden compositivo de huecos de la edificación preexistente. En el interior, la distribución espacial de usos se adapta a la fuerte topografía en función de los requisitos establecidos por el cliente.